OCXT 08711 - 203

Ngày đăng: 13/03/2026 Cập nhật tiếp theo: 27/03/2026
Giá nhà /
Phí quản lý
78,000 (+5,000円)
Cọc / Lễ 0円 / 0円
Bảo hiểm 2,000円 (hàng tháng)
Phí bảo lãnh Đang cập nhật
Chi phí khác

Hàng tháng

Phí bảo lãnh hàng tháng 1,330円

Ban đầu

Vui lòng liên hệ

Ghi chú: Gói giá cố định ban đầu (đã bao gồm tối đa 1 tháng tiền thuê nhà)
◎ Chi tiết gói: Tiền thuê nhà, phí quản lý, phí khu phố, phí thiết lập ứng dụng cho người thuê, phí bảo lãnh ban đầu, phí thay chìa khóa (không bao gồm phí bảo hiểm dịch vụ hỗ trợ 24h)

Tình trạng Sắp chuyển ra
Hợp đồng 2 năm
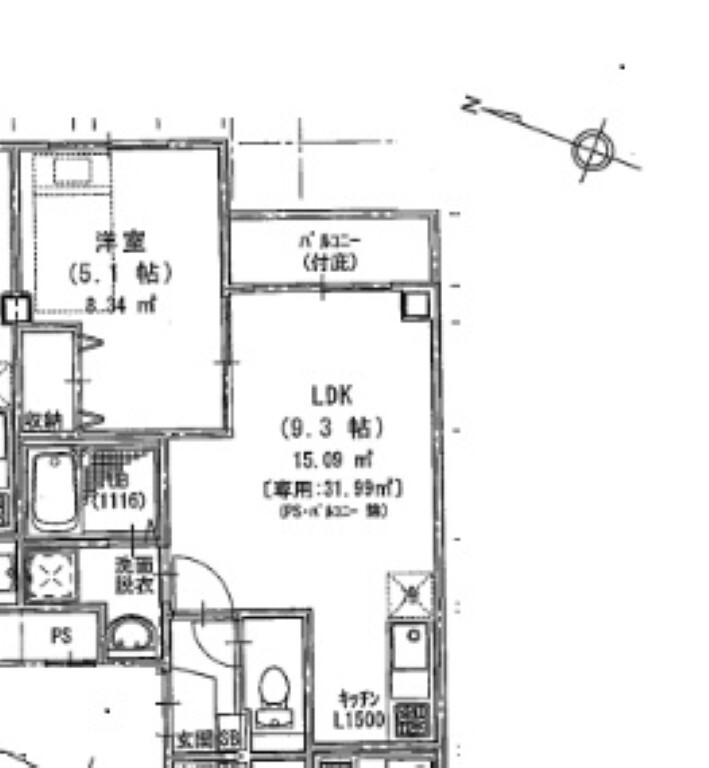
Kiểu bố trí 1LDK
Diện tích 31.99m²
Vị trí JR Keiyo Line
Ga Soga đi bộ 7 phút
Keisei Chihara Line
Ga Chibadera đi bộ 17 phút
JR Sotobo Line
Ga Honchiba đi bộ 41 phút
Chiba, Chibashichuo, Minamicho
Thiết bị
trong phòng
Nhà tắm - nhà vệ sinh riêng biệt / Bồn rửa mặt độc lập / Tủ chứa đồ / Điều hòa / Bếp gas / Chuông cửa có camera / Máy nước nóng sử dụng gas / Internet miễn phí / Chỗ để máy giặt trong phòng
Điều kiện thuê

Có phí hủy hợp đồng nếu ở dưới 2 năm

Visa

Bạn thích phòng này?
Kiểm tra tình trạng phòng trống ngay

ID căn hộ OCXT 08711 - 203

Gửi kèm ID căn hộ khi liên hệ cho chúng tôi
để được hỗ trợ nhanh chóng nhất

※ Lưu ý: Thông tin được đăng tải có thể sai khác do có sự thay đổi mà chưa được cập nhật, vui lòng liên hệ cho chúng tôi để kiểm tra thông tin mới nhất

Thông tin tòa nhà

Mã tòa nhà OCXT 08711
Số tầng
Năm xây dựng 2016
Loại nhà /
kết cấu
Chung cư / 鉄骨造 - Khung thép
Trang thiết bị
chung
Auto-Lock / Gas Propan
Tiện ích
xung quanh
Đang cập nhật